【自社物件】賃貸でも!売買でも!JR常磐線勝田駅から徒歩13分・4LDK!
JR勝田駅から徒歩13分♪徒歩圏内で暮らせる戸建てのご紹介です。
物件の特徴
- 両面道路!いずれも幅員4m
- 駐車場1台、管理しやすいコンパクトなお庭付
- JR勝田駅から徒歩13分
- セイブ勝田店まで徒歩6分
- 東石川小学校まで徒歩10分

車が無くても暮らせます♪線路脇なので騒音、振動があります。
2階寝室には洗面台とトイレが備わっているので、夜中のおトイレも安心!
これからリフォームを行う予定です。着工するまでは価格・入居時期の交渉は可能です。
リフォーム内容につきましてはお問い合わせください。
(令和7年10月現在)
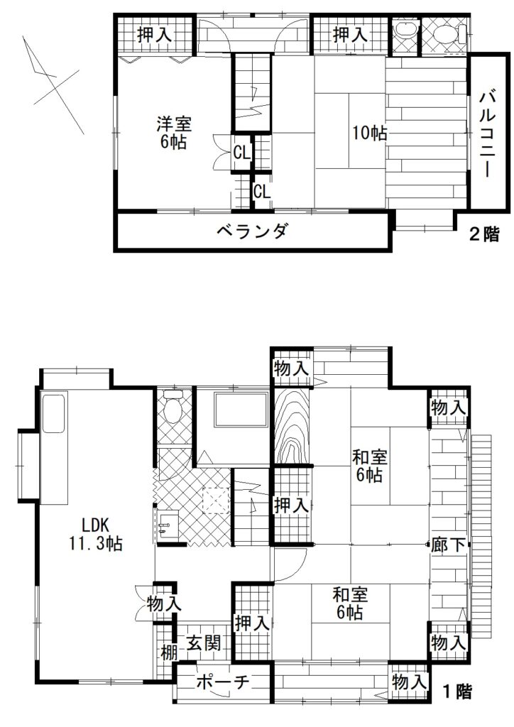
外観・間取り
3LDKの間取り


物件概要
| 物件種目 | 中古戸建て |
| 最寄駅 | JR常磐線 勝田駅 |
| タイプ | 4LDK |
| 賃料 | 7.5万円※11/15まで1,180万円で販売中! |
| 物件所在地 | 茨城県ひたちなか市東大島 |
| 交通 | JR常磐線 勝田駅から徒歩13分 |
| 建物 | 構造・規模:木造瓦葺 2階建 面積:1階60.07㎡/2階28.98㎡(登記簿謄本) 現況合計108.26㎡ |
| 資料ダウンロード | J.home6募集図面・ |
| 土地権利 | 所有権 |
| 登記地目 | 宅地 |
| 都市計画 | 市街化区域 |
| 用途地域 | 第一種住居専用地域 |
| 値の法令上の制限 | ー |
| 築年月 | 昭和49年12月27日 |
| 駐車場 | 敷地内1台可 |
| 現況 | 空き家 |
| 引渡日 | 相談 |
| 接道状況 | 南東側公道幅員4m・南西側公道幅員4m |
| 設備 | 上水道・下水道・個別プロパンガス・エアコン2台(残置) |
| 備考 | リフォーム予定 |
天井のシミや砂壁の劣化、建具の動き等、複数不具合箇所がございます。
必ず内見にお越しいただき、ご自身の目で検分をお願いいたします。

アットホームでご覧になりたい方はこちらから
内見可能です!以下のお問い合わせから、お気軽にご相談ください。
*・゜゚・*:.。..。.:*・''・*:.。. .。.:*・゜゚・*
わかる・なおす・まもる
株式会社住宅サービス
茨城県ひたちなか市東大島1-17-6-101号ファーストウィング
茨城県知事許可(般-03)第37470号/茨城県知事(2)第7362号
0120-03-5517 リフォーム
0120-20-5680 不動産
お問い合わせお待ちしています。

住宅サービスへの
ご相談・お問い合わせ
不動産売買、リフォーム、雨漏りの診断など、
お気軽にご相談ください












